




優勢:主要用于垂直或大傾角輸粉狀、顆粒狀及非粘性干燥物料,占地面積小,進料口到出料口距離2.5-15米,料倉加配振動電機,進料均勻,可自動控制加料,密封式輸送,不會產生粉塵污染。
——垂直或大角度輸送
優惠價:2800元起現在咨詢即可享受9折優惠
提升高度:15米 輸送量:140立方/時
篩分物料:糧食、油麩、飼料、化工原料、水泥等粉狀、粒狀、非粘性的容重≤1.3t/m3的干燥物
應用行業:冶金、煤炭、建材、水泥、飼料、糧食、醫藥、食品等
預約試機0373—268 2333
立即訂購

服務承諾:30天質量問題包退24小時內發貨72小時內現場快修1年質保
垂直螺旋輸送機垂直輸送飼料

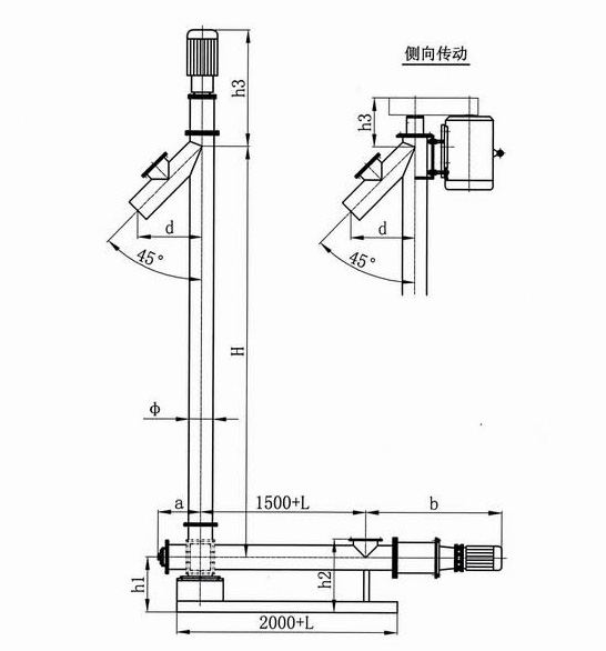
垂直螺旋輸送機也叫垂直螺旋提升機,垂直螺旋給料機,主要用于垂直或大傾角輸送粉狀、粒狀、非黏性的容重≤1.3t/m的干燥物料,其提升高度是指進料口到出料口的距離,一般不超過8米,1/2米為一檔,由用戶選定,當提升高度<8米時,只需在垂直螺旋輸送機上部設懸吊軸承,下部不需設置軸承,由物料自身支承螺旋體,當提升高度較大時,中部可設置徑向軸承。

垂直螺旋輸送機進料形式方便,強迫進料采用迂回進料形式,這種形式的進料口與外殼呈90°連接,適用于流動性差的物料,驅動裝置的布置上,一般有兩種布置形式:①頂部驅動:適用于輸送高度低的場合,占地面積小;②底部驅動,適用于輸送高度高的場合,占地面積大。



垂直螺旋輸送機視頻
不銹鋼垂直螺旋輸送機垂直輸送化工粉末

垂直螺旋輸送機輸送物料是依靠適當的螺旋轉速,當物料顆粒與槽壁之間的摩擦力足夠大時,物料顆粒將與螺旋表面發生滑動,并沿相反方向的螺旋形軌道上升,物料顆粒被垂直螺旋推動,從而達到垂直輸送的目的。



1、每小時輸送量可達140立方,垂直提升高度可達15米。
2、垂直或大傾角輸送,解決了占地面積。
3、可在輸送線路上任意點裝料,對垂直螺旋輸送機配置相對螺旋式去聊裝置,方便取料。
4、能逆向輸送,也可使一臺輸送機同時向兩個方向輸送物料,即集向中心或遠離中心。
5、能實現密封輸送,有利于輸送易于飛揚、熾熱的機氣味強烈的物料,減少對環境的污染,改善工人的作業條件。

垂直螺旋輸送機由下部進料口、上部卸料口、垂直螺旋體、支承軸承及驅動裝置所組成。

垂直螺旋輸送機是旋轉的螺旋葉片將物料推移而進行螺旋輸送機輸送,垂直螺旋體向上推送物料所需的低轉速稱臨界轉速,低于臨界轉速時,就不能達到向上輸送物料的目的,在稱定運行并滿足輸送量要求的情況下,選用較低轉速可減少物料對螺旋葉片及機殼的磨損,以提高其使用壽命。
垂直螺旋輸送機參數:
| 螺旋直徑(mm) | 螺旋轉速(r/min) | 輸送量(m3/n) | 輸送高度(m) | 立即咨詢 |
| KLS200 | 200 | 350 | 2.5-15 | |
| KLS250 | 250 | 300 | 2.5-15 | |
| KLS300 | 315 | 2808 | 2.5-15 |

驅動裝置:采用上驅動形式。電機安裝在主機的頭部,動力經皮帶傳送到主軸上,從而帶動螺旋運轉。當電機功率小于或等于15Kw時,采用單驅動,當電機功率大于15Kw時,則采用雙驅動。
螺旋:螺旋葉片的面型根據輸送垂直螺旋輸送機物料的不同有實體面型、帶式面型、葉片面型等型式。
軸承:垂直螺旋輸送機的螺旋軸在物料運動方向的終端有止推軸承以隨物料給螺旋的軸向反力,在機長較長時,應加中間吊掛軸承。
料槽:料槽材料有碳鋼和不銹鋼,但常用2~4mm厚的薄鋼板制成,橫斷面兩側壁垂直,底部為半圓形。

1、采用上驅動型式,電機安裝在主機的頭部,動力經皮帶傳送到主軸上,動力大,占地面積小。
2、強推管道,加強物料的流動性,避免物料卡堵、回料。
3、出料口根據關鍵決定大小,常規出料口長度越20cm,也可按要求定制出料口形狀和長度。
4、設置有清掃裝置,可有效防止物料堵塞。
垂直螺旋輸送機的垂直或大傾斜角度輸送粉狀、粒狀的物料,如糧食,油麩、飼料、化工原料、水泥等物料,可應用在水泥廠、糧庫、化工廠等場合。


1、垂直螺旋輸送機可按下面的經驗公式進行計算 Q=8.007?D?3n (m3/n) 式中:Q=輸送量(m3/n); D=螺旋直徑(m); n=螺旋轉速(r/min )。
2、電機功率按下面的經驗公式進行計算 N=0.015258856Q?r?H (Kw) 式中:N=電機功率(Kw );Q=輸送量(m3/n); r=物料容重(t/m3); H=進料口到出料口之間的距離(m )。
3、長度組合: 高度(訂貨高度)是指進料口到出料口之間的距離,從2.5米起到15米止,0.5米一檔,用戶可以根據需要選用。
4、驅動裝置: 采用上驅動型式。電機安裝在主機的頭部,動力經皮帶傳送到主軸上,從而帶動螺旋運轉。

垂直螺旋輸送機上部有軸承支承,大多數采用單列圓錐滾子軸承兩個,安裝此軸承時,不可裝反,以免出現問題。
單列圓錐滾子軸承與向心推力球軸承相似,但承載能力更大,內外圈可分離,間隙容易調整。常用于斜齒輪軸、蝸輪減速器軸、機床主軸等。圓錐滾子軸承主要適用于承受以徑向載荷為主的徑向和軸向聯合載荷,而大錐角圓錐滾子軸承可以用于承受軸向載荷為主的徑軸向聯合載荷。此種軸承為分離型軸承,其內圈(含圓錐滾子和保持架)和外圓可以分別安裝。在安裝和使用過程中可以調整軸承的徑向游隙和軸向游隙,也可以預過盈安裝.
單列圓錐滾子軸承3000型,此種軸承能夠限制軸或外殼一個方向的軸向位移。承受一個方向的軸向載荷。在徑向載荷作用下會產生附加軸向力,因此,一般在軸的兩個支承中,軸承的外圈和內圈的同名端面相對安裝。如單獨使用,其外加軸向力必須大于附加軸向力。
垂直式螺旋輸送機上部兩單列圓錐滾子軸承在安裝時,要注意,內圈在上面安裝垂直小錐面向上,在下面安裝垂直小錐面向下,兩單列錐滾子軸承相對安裝,這樣就可以支承住實體螺旋面不向下位移,保證生產的正常運轉。
垂直螺旋輸送機的工作條件較惡劣,各個軸承都處于粉塵包圍之中,導熱條件不好,因此在這樣的工作條件下合理操作、保養尤為重要,故要求如下:
螺旋機應無負荷起動,待起動正常后向進口投料。
給料時應均勻限額,給料量要合適以免使機器過載。
停車前,應停止給料,使機殼內物料輸送完后方可停止。
輸送物料內不得混入堅硬大塊,避免螺旋卡死損壞輸送機。
在使用中應檢查各部件的聯結禁錮件是否松動,動力是否發熱,聲音是否正常,一旦有異常,立即停車糾正。
調速電機起動、運行、停止。可以全壓起動亦可降壓起動,電動機起動后合上控制箱電源開關,逐漸調節速度旋鈕,增加激磁電流,離合器轉速逐漸加至需要運行轉速。停車時把調速旋紐調到零位,再停止拖動電機。
各加油部位應定期加油。


1.保修期內非因操作不當造成需要更換的零配件及設備由我廠負責包修、包換。
2.質量保證期結束后,我廠將繼續免費提供售后服務,不限年份終身服務,僅收取零部件成本費,免收人工費,免收維修費。
為了向您提供完善的售后服務,請將您的寶貴意見、建議及要求反饋給我廠。我們感謝貴單位使用我廠的產品,我廠建立有完整的營銷網絡及完善的售后服務體系,售后服務部已將您購買的產品建立了信息檔案。如果您購買的產品出現質量問題,我們將及時為您提供全方位的服務。
問:垂直螺旋輸送機一般適用在什么樣的場所?
答:垂直螺旋輸送機的垂直或大傾斜角度輸送粉狀、粒狀的物料,如糧食,油麩、飼料、化工原料、水泥等物料。
問:垂直螺旋輸送機多少錢一臺?
答:由于受材質、型號、設計、廠家等方面的影響,其價格會有所差異,一般情況下,一臺垂直螺旋輸送機價格在2800-43000元之間,具體價格可咨詢大漢客服。
問:垂直螺旋輸送機型號怎么選?
答:①分析物料,垂直螺旋輸送機適宜垂直或大傾斜角度輸送粉狀、粒狀、非粘性的容重≤1.3t/m3的干燥物料,不適宜輸送塊狀及粘性的物料。②明確產量,型號越大,產量就越大。③現場要求,根據不同用戶的現場情況可對配置進行改造,如防爆型、水冷型等等。
問:垂直向上螺旋輸送機不上料怎么辦?
答:①物料水分大,集結在螺旋吊軸承上并逐漸加厚,使來料不易經過,處理辦法是加強質料烘干。②雜物使螺旋吊軸承阻塞,處理辦法是停機清除機內雜物。③傳動裝置失靈,未及時發現,應停機、修正傳動裝置。
問:垂直螺旋輸送機停機的時候總是有物料是怎么回事?
答:①對進入輸送機的物料進行必要的清理,以防止纖維性雜質進入到機內造成堵塞。②安裝料倉料位器和堵塞感應器,實現自動控制和報警。③加大出料口或加長料槽端部或在出料口料槽端部安裝一小段反旋向葉片。④在卸料端蓋板上開設一防堵活門。發生堵塞時,因為物料堆積,頂開防堵門,同的通過行程開關堵截電源。